
BUTZ + WÖLBERN
PLANUNGSGESELLSCHAFT MBH
ARCHITEKTEN
RINGSTR. 14
30457 HANNOVER
FON 0511-971 72 0
EMAIL info@b-w-p.de
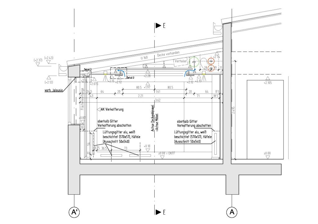
Entwurf und Innenausbau einer privaten Zigarrenlounge mit hinterleuchteten Einbaumöbeln für Humidor, Weinschränken etc., Einzelmöbeln, Decken"himmel" sowie zentraler Lüftungsanlage.
Fertigstellung: 2015