
BUTZ + WÖLBERN
PLANUNGSGESELLSCHAFT MBH
ARCHITEKTEN
RINGSTR. 14
30457 HANNOVER
FON 0511-971 72 0
EMAIL info@b-w-p.de
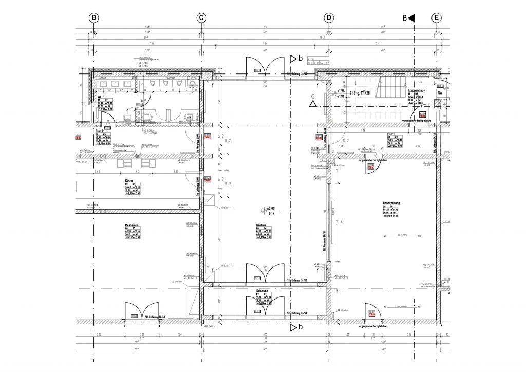
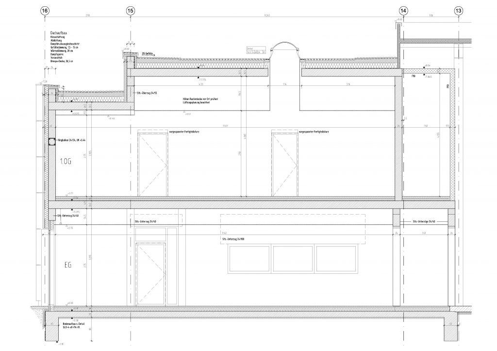
Eine Produktionsstätte eines hildesheimer Unternehmens in Brandenburg wurde teilweise umgebaut und erweitert.
Es entstanden größere Mitarbeiter-Umkleiden, WC- und Duschanlagen, eine Kantine mit Küche, zusätzliche Verwaltungs- und Besprechungsräume sowie Werksräume.
Fertigstellung: 2014