
BUTZ + WÖLBERN
PLANUNGSGESELLSCHAFT MBH
ARCHITEKTEN
RINGSTR. 14
30457 HANNOVER
FON 0511-971 72 0
EMAIL info@b-w-p.de
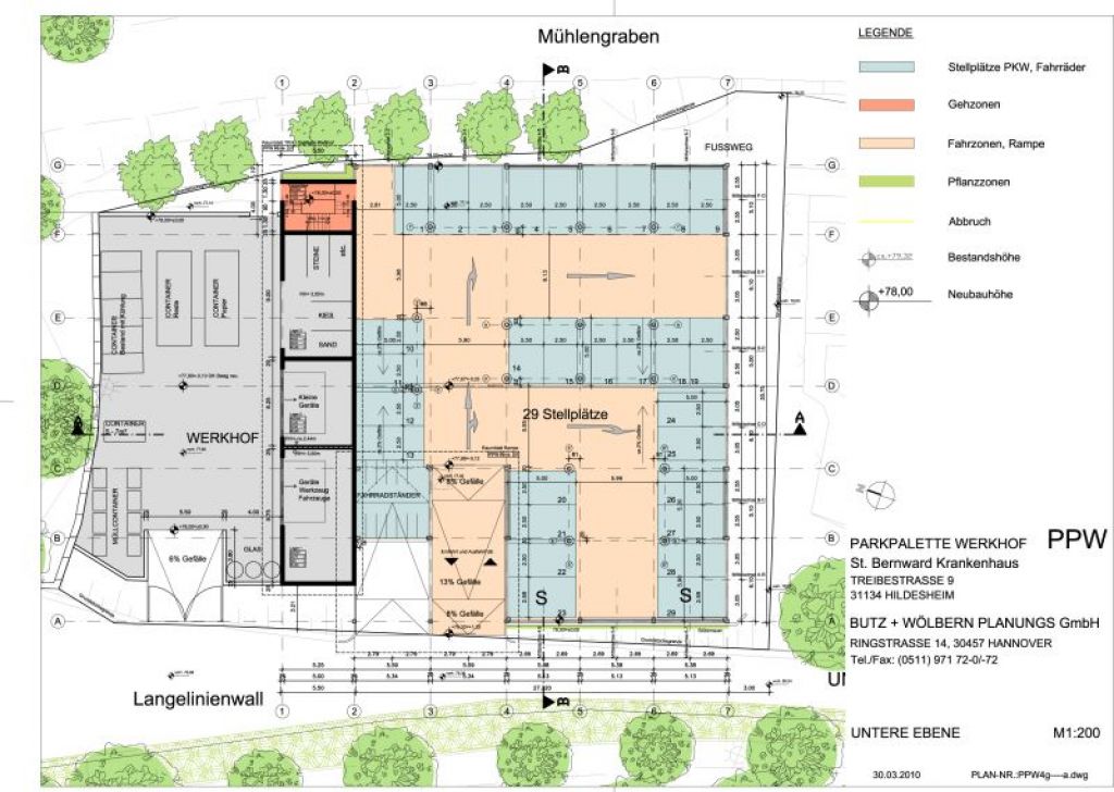
Der Bereich Werkhof (Ver- und Entsorgung des Krankenhauses / Gärtnerei / Lagerbereiche) wird optimiert und erhält eine 2-geschossige Parkpalette mit vorerst 58 Stellplätzen.
Eine spätere Erweiterungsmöglichkeit auf das Nachbargrundstück und entsprechende Erhöhung der Stellplätze auf insgesamt 216 ist geplant.
Wie bei der Parkpalette 'Parkplatz' erfordert auch hier die räumliche Nähe zum naturgeschützten Langelinienwall und der Godehardikirche eine enge Zusammenarbeit mit den Behörden. Zusätzlich war die beengte räumliche Situation eine Herausforderung.
Analog zur bereits gebauten Parkpalette erhält auch diese Fassade eine Stahlkonstruktion, die im Laufe der Zeit von Grünpflanzen berankt wird und so eine Einbindung in den angrenzenden Grüngürtel des Langelinienwalls erfährt.
Fertigstellung: 2011