
BUTZ + WÖLBERN
PLANUNGSGESELLSCHAFT MBH
ARCHITEKTEN
RINGSTR. 14
30457 HANNOVER
FON 0511-971 72 0
EMAIL info@b-w-p.de
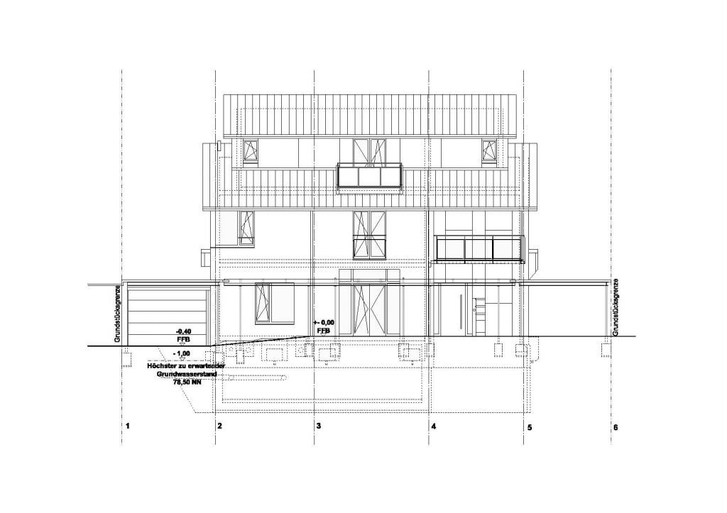
Der Abriß eines alten Wohngebäudes und der Neubau eines Mehrfamilienhauses (3 WE - behindertenfreundlich) wurde ab Leistungsphase 6 (Ausschreibung) von uns übernommen.
Die aufwändige Detailplanung stellte hohe Anforderungen an Bauleitung sowie genaue Kontrolle der Kosten und Termine.
Fertigstellung: 2010, Leistungsphasen 6-9 HOAI