
BUTZ + WÖLBERN
PLANUNGSGESELLSCHAFT MBH
ARCHITEKTEN
RINGSTR. 14
30457 HANNOVER
FON 0511-971 72 0
EMAIL info@b-w-p.de
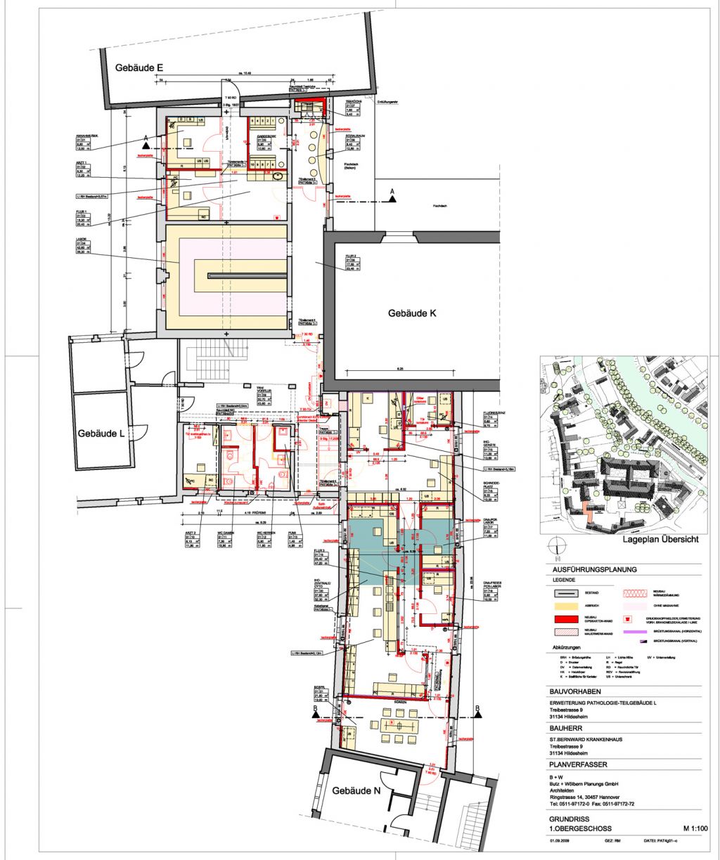
Der Bereich Pathologie war um weitere Labor- und Bürobereiche zu erweitern.
Hierbei entstand u.a. ein DNA-freies Labor (PCR) sowie weitere Laborräume (IHC-Zentrale), Arztzimmer, Sozialräume und Teeküche.
Ungenutzte und veraltete Bereiche wurden umgebaut und saniert. Der Umbau erfolgte mit allen erforderlichen Maßnahmen bei laufendem Betrieb angrenzender Stationen.
Fertigstellung: 2010